Many overseas projects start talking about styles and colors before the layout is clear. That is why so many “custom” homes end up with awkward storage and wasted space.
Mulan Build, a one-stop building materials supplier under George Mulanbuild, uses your floor plan as the starting point for whole house customization in China. With just that drawing, we can plan custom cabinets, doors and windows, bathroom fixtures, furniture and stone as one coordinated package.

Why Your Floor Plan Drives Whole House Customization
Whole house customization is not just choosing finishes. It is deciding how every room works before you spend on materials and furniture.
If you want whole house customization in China to really improve your villa or apartment, the floor plan is the control center. Once the layout is clear, every cabinet, door, window and bathroom fixture can be customized with purpose, not guesswork.
When we talk about “whole house customization”, we mean planning your kitchen, wardrobes, doors and windows, bathroom fixtures, furniture and stone together—not as separate orders. Your floor plan shows room sizes, wall positions and circulation, so we can understand how people move, where light comes from and where storage is actually needed. With that, Mulan Build can turn a simple 2D drawing into coordinated 2D and 3D designs: custom cabinets in the kitchen and bedrooms, correctly sized openings for doors and windows, bathroom layouts that fit real fixtures, and stone surfaces that match your project level. Because we work as a one-stop building materials supplier with a 30,000㎡ multi-category showroom in Foshan and projects in 140+ countries, we know how to use your floor plan to balance aesthetics, cost and practicality. The better the plan, the easier it is to avoid mistakes like undersized wardrobes, doors clashing with cabinets or wasted corners in open-plan spaces.
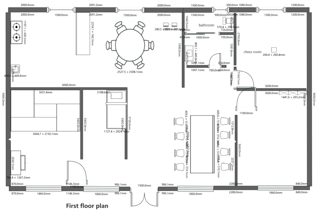
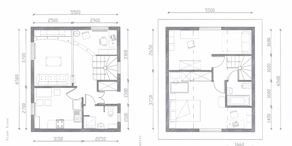
What A “Ready” Floor Plan Should Include
You do not need a perfect BIM model to start. A clear floor plan with basic dimensions is enough for us to begin design deepening.
At minimum, we need a floor plan that shows wall positions, room names and key openings. If you also share dimensions, structural columns and plumbing points, we can move faster with custom cabinet, bathroom and stone proposals.

Most overseas clients share their architect’s CAD drawing or a clean PDF. As long as walls, doors and windows are visible, we can start. Room labels—such as master bedroom, guest room, kitchen, living room, laundry, maid room—help us understand function. Overall dimensions and a few key measurements (like ceiling height and stair positions) let us check whether standard or more tailored cabinet solutions are needed. If plumbing points for bathrooms, kitchens and laundries are already fixed, we design bathroom fixtures, shower glass, toilets and bathroom cabinets around those positions; if not, we can still propose reasonable layouts as a reference for your consultant. Even a developer sales plan can work as a starting point, and we refine it step by step. The key is that your floor plan becomes the single reference for all follow-up drawings: custom cabinets, doors and windows, bathroom fixtures, furniture and stone. You can also mark special requests directly on the plan—such as extra storage walls, study corners or bar areas—so our designers know where to spend more time when preparing whole-house proposals.
Mark Key Zones For Cabinets, Doors, Windows, Bathrooms, Furniture And Stone
A flat floor plan does not automatically show priorities. Without simple markings, designers may guess where to focus and where to keep standard solutions.
By quickly marking cabinet walls, main doors and windows, key bathrooms, major furniture pieces and stone feature areas, you help us translate your plan into a realistic whole-house customization roadmap.

We suggest a simple system. First, circle or highlight where you expect major custom cabinets: kitchen runs and islands, walk-in or reach-in wardrobes, TV walls, bar cabinets and storage walls. This tells us which areas should receive more detailed internal layouts and 3D views. Second, check doors and windows. Mark any openings that must not be moved and note where you want bigger glass, special profiles or sliding doors; this helps our doors and windows team align design with structure. Third, highlight bathrooms and WCs that are especially important, such as master bathrooms or guest powder rooms near the entrance. Here we coordinate bathroom fixtures, bathroom cabinets, mirrors and shower glass so everything fits correctly. Fourth, sketch the rough position of main furniture pieces—beds, sofas, dining tables and desks—even with simple boxes. This shows us how circulation and storage interact, and where built-in furniture may replace loose items. Finally, indicate stone feature zones: staircases, kitchen countertops, island cladding, lobby floors or accent walls where marble or quartz should stand out. With these marks, Mulan Build can treat your project as one whole, instead of designing each category separately, and deliver proposals that already consider how custom cabinets, doors and windows, bathroom fixtures, furniture and stone work together in daily life.
How To Package Your Floor Plan For Mulan Build
Many clients overthink “what to prepare” and delay starting. In reality, a simple package with your floor plan and a few references is enough for us to begin whole house customization in China.
You send us your floor plan first—that is the must-have. Then, if available, add photos, mood boards or basic notes. We turn that into 2D/3D proposals across cabinets, doors and windows, bathroom fixtures, furniture and stone.
A practical starting package usually includes four things. First, the floor plan file (CAD, PDF or a clear image). This is the foundation for all later drawings. Second, any existing elevations or sections, especially around staircases, double-height spaces and feature walls; they help us size doors, windows and vertical cabinets correctly. Third, a short written brief: project type (villa, apartment, mixed-use), target buyers or tenants, and the general level you want to position (mid to high-end, luxury, etc.). Mention if you care more about storage, easy cleaning, visual impact, or a balance of all three. Fourth, 3–5 reference images or mood boards for key areas—kitchen, wardrobes, main living room, master bathroom. These are not for copying, but they guide tone and direction. With this package, Mulan Build’s team can begin design deepening: we prepare cabinet layouts, stone and tile suggestions, and whole-house coordination concepts, then move into 3D design and renderings so you can see the effect before production. We mainly provide materials, design and installation guidance, and for certain countries we have long-term installation partners and can help match you with local teams if you do not have your own contractor yet. After installation, if any issue appears, you only need to send photos or videos plus your order information, and a dedicated specialist will follow up with a solution.
Share Your Plan, Get Ideas:
Send us your floor plan and a short brief about your residential or commercial project—how many rooms you have, which areas matter most and what level you want to position it at. Our team at Mulan Build will propose coordinated whole house customization options in China across custom cabinets, doors and windows, bathroom fixtures, furniture and stone.








